Description
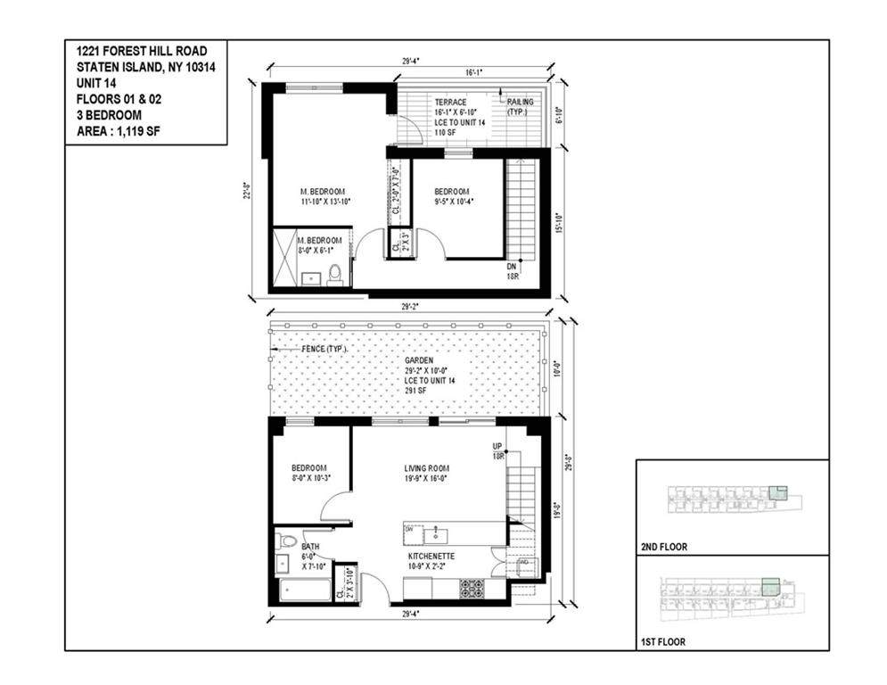
This luxury 3-bedroom, 2-bathroom residence offers thoughtful design across two levels. Currently under construction, the home will feature one bedroom conveniently located on the first floor. Enjoy a private garden and a spacious terrace on the second floor-ideal for indoor-outdoor living. The exterior is finished with high-performance Thermawood panels by Lunawood and sleek stucco, complemented by Pella windows and balcony/terrace doors for energy efficiency and quiet comfort. Inside, you'll find engineered wood flooring in all bedrooms, living areas, and kitchenettes, with durable porcelain tile in the bathrooms and washer/dryer closets. Unit includes a hookup for an electric ventless dryer. 2 Zone heating and cooling system. Additional amenities include assigned parking and bicycle storage in the basement. Don't miss this rare opportunity to own a stylish, well-appointed new construction home in a thoughtfully designed building! Subject to E&O.
-
3BEDS
-
N/AACRES
-
2BATHS
-
01/2 BATHS
-
1,119SQFT
-
$706$/SQFT
School Ratings & Info
Description
This luxury 3-bedroom, 2-bathroom residence offers thoughtful design across two levels. Currently under construction, the home will feature one bedroom conveniently located on the first floor. Enjoy a private garden and a spacious terrace on the second floor-ideal for indoor-outdoor living. The exterior is finished with high-performance Thermawood panels by Lunawood and sleek stucco, complemented by Pella windows and balcony/terrace doors for energy efficiency and quiet comfort. Inside, you'll find engineered wood flooring in all bedrooms, living areas, and kitchenettes, with durable porcelain tile in the bathrooms and washer/dryer closets. Unit includes a hookup for an electric ventless dryer. 2 Zone heating and cooling system. Additional amenities include assigned parking and bicycle storage in the basement. Don't miss this rare opportunity to own a stylish, well-appointed new construction home in a thoughtfully designed building! Subject to E&O.
© 2026 Brooklyn New York Multiple Listing Service, Inc. All Rights Reserved. IDX information is provided exclusively for consumers' personal, non-commercial use and may not be used for any purpose other than to identify prospective properties consumers may be interested in purchasing. Information is deemed reliable but is not guaranteed accurate by the MLS or Team Gio | RE/MAX Central. Data last updated: 2026-01-21T00:00:18.41.
